万円
Recommended
特徴・設備
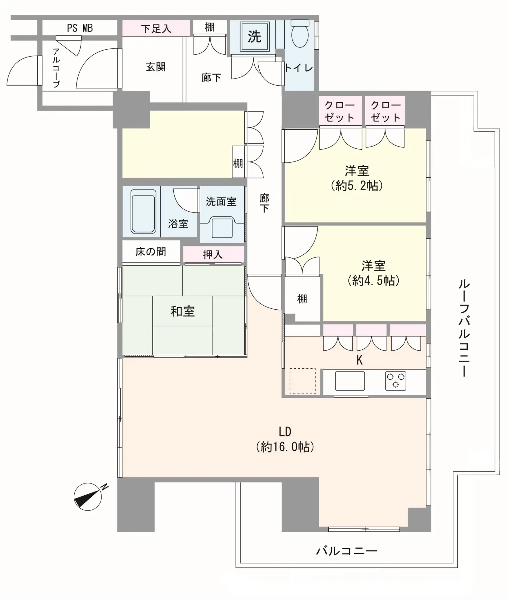
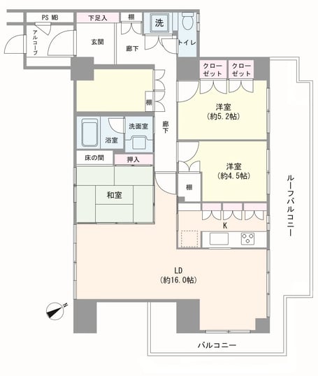
※ルーフバルコニー面積、バルコニー面積は実測面積です
※総戸数の内訳:住戸数65戸、店舗6戸
※ルーフバルコニー使用料:無償
周辺情報
物件詳細
この物件を見学してみませんか?
お問い合わせはこちら
本物件の詳しい情報、購入・ローン相談など、お気軽にお問い合わせください。
ハンドル株式会社
定休日 毎週火・水曜日、第一木曜
0120-595-590
営業時間 10:00〜20:00





